|   | ||
|   全部產品分類
 | ||
 
                         
                         
                         
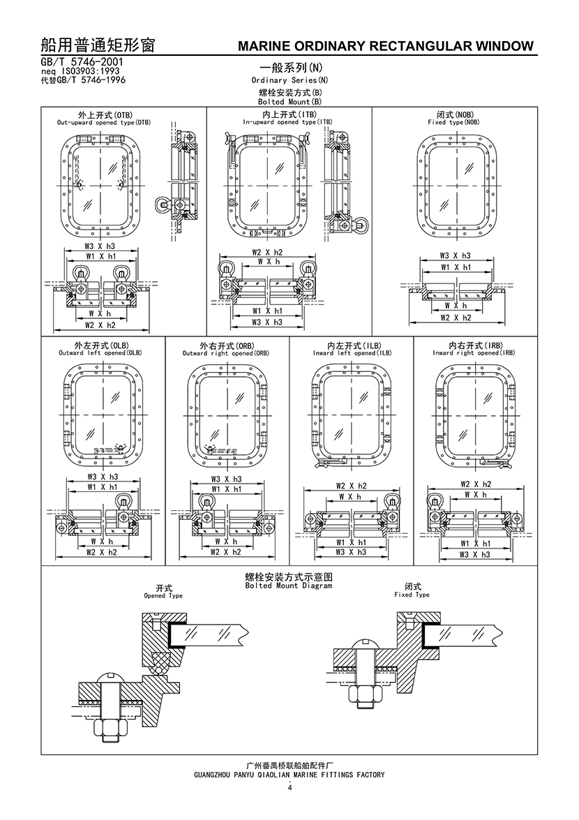
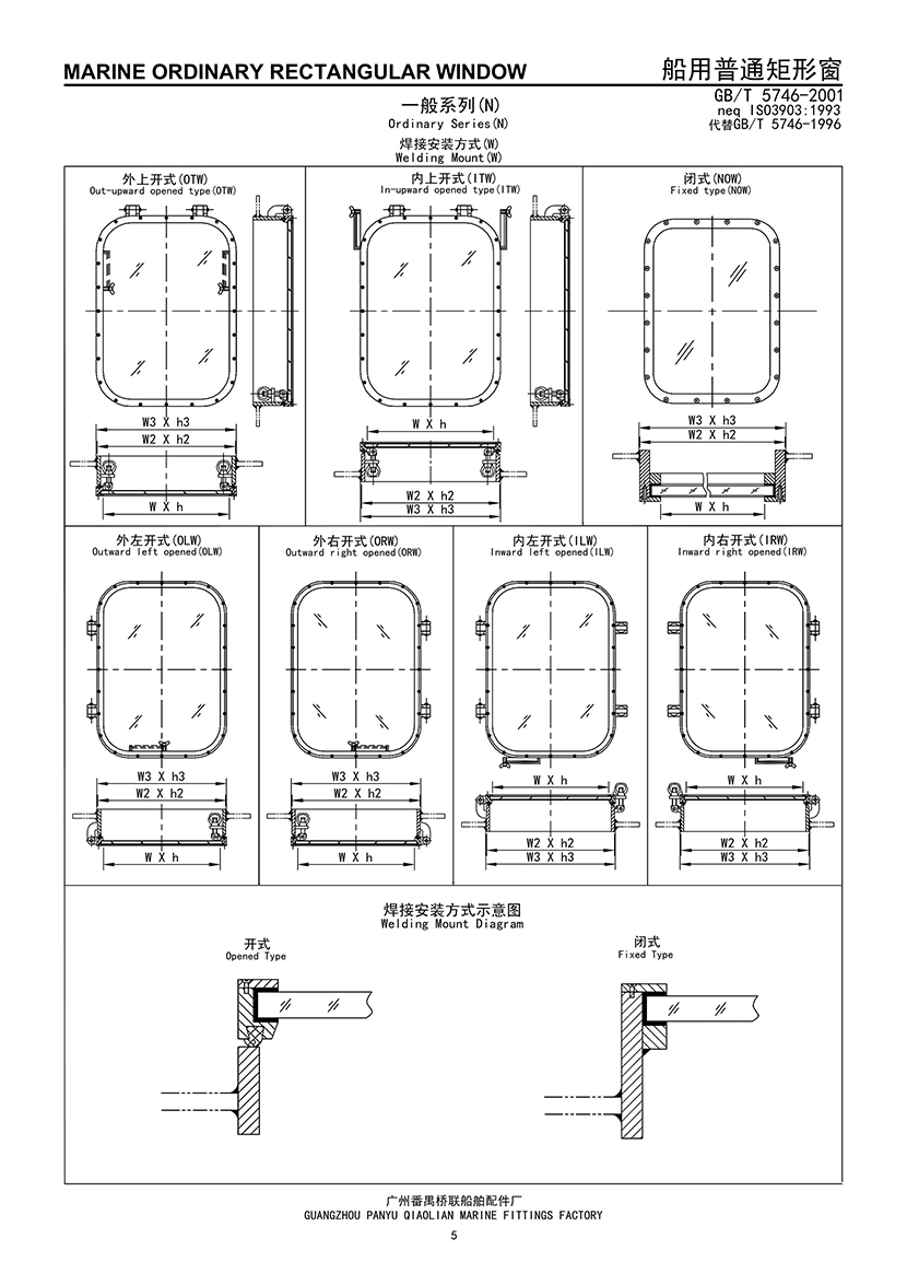
            | 船用焊接安裝式普通矩形窗 | |||
| 安裝方式: | 焊接式 | 圍壁開孔尺寸: | 612×852 126mm | 
| 開啟形式: | 側鉸鏈 | ||
 
        


 
        | -供應商聯系方式- | |||||
|   | 公司名稱: | 廣州番禺橋聯船舶配件廠 |   | 聯系人姓名: | 陳偉安 | 
| 公司地址: | 廣東省廣州市番禺區石碁鎮大龍工業區黃山路2號之8 | 聯系人電話: | 020-84634555/84634492 | ||
| 聯系人郵箱: | qiaoliancn@126.com | ||||