|
||
全部產品分類
|
||
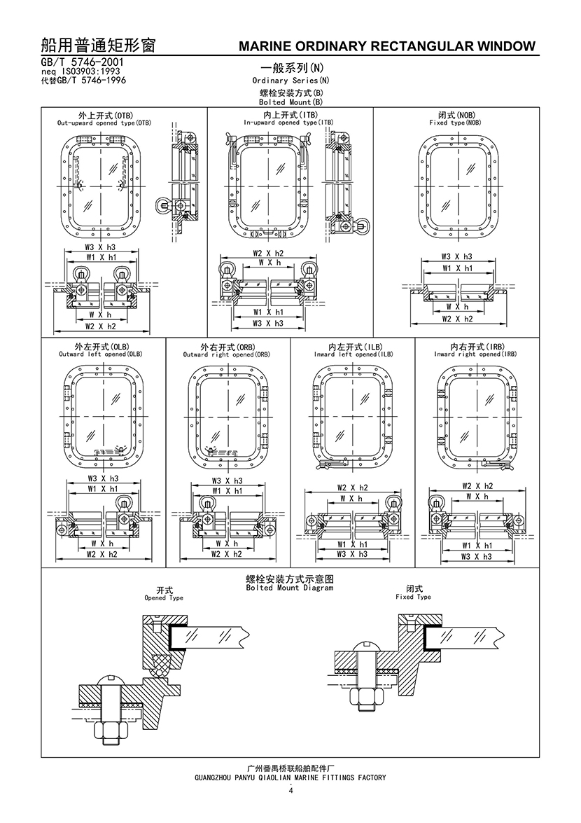
| 船用螺栓安裝式普通矩形窗 | |||
| 安裝方式: | 螺栓式 | 圍壁開孔尺寸: | 612×852 126mm |



| -供應商聯(lián)系方式- | |||||
|
|
公司名稱: | 廣州番禺橋聯(lián)船舶配件廠 |
|
聯(lián)系人姓名: | 陳偉安 |
| 公司地址: | 廣東省廣州市番禺區(qū)石碁鎮(zhèn)大龍工業(yè)區(qū)黃山路2號之8 | 聯(lián)系人電話: | 020-84634555/84634492 | ||
| 聯(lián)系人郵箱: | qiaoliancn@126.com | ||||